Строительство коттеджей из газобетона и керамических блоков под ключ

Modern 350

Общая плошадь 350 м2
Количество этажей 2
Количество спален 5
Стоимость дома 9 450 000 руб.
Материал
Выбрать комплектацию
Получить расчёт
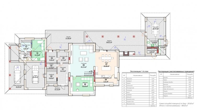
Планировка
1 этаж
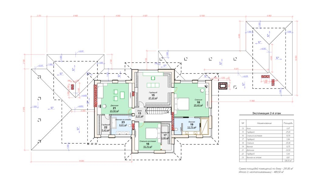
2 этаж
Материал
Комплектация
Описание работы Стандарт
от  9 450 000  руб
Теплый контур
от  11 812 500  руб
"White box"
от  16 537 500  руб
Под ключ
от  18 900 000  руб
Подготовительные работы
Индивидуальное проектирование дома
Выезд инженера на объект для оценки состояния участка и грунтов
Геологические изыскания
Фундамент
Работы нулевого цикла, отсяпка основания из песка и щебня
Монолитная ж/б плита (мин. 30 см.)
Стены
Внешние несущие стены/Устройство оконных и дверных перемычек/Устройство армопоясов
Перегородки
Возведение внутренних перегородок
Вентканалы и дымоходы
Устройство под монтаж дымоходов и вытяжек
Устройство шахты дымохода и вентканалов
Перекрытия
Перекрытие из ж/б пустотных плит/монолитное перекрытие (для двухэтажных домов с полноразмерным вторым этажом)
Стропильная система
Монтаж стропильной системы
Утепление кровли
Утепление кровли (Rockwool 200мм.)
Кровельное покрытие
Кровельное покрытие из металлочерепицы
Фасад
Внешняя отделка фасада (штукатурка с утеплителем)
Водосточная система
Устройство водосточной системы
Подшив свесов кровли
Обшивка свесов кровли
Отмостка
Устройство бетонной отмостки
Отделка цоколя
Отделка цоколя камнем/штукатуркой
Окна
Окна и балконные двери пластиковые (Двухкамерные Rehau, Melke)
Наружная входная дверь
Наружная металлическая дверь (утеплённая)
Внутренние инженерные коммуникации
Монтаж системы отопления/Водоснабжения/Водоотведения/Электрика/Монтаж щитка
Внутренняя отделка
Штукатурка внутренних стен
Стяжка пола
Финишная отделка внутренних стен, пола, потолков, установка межкомнатных дверей (Базовые решения от Lemana RPO)
Описание

Представляем проект "Modern 350" – двухэтажный дом площадью 350 м², созданный для тех, кто ценит современный стиль, простор и гармонию с окружающей природой. Этот дом станет идеальным местом для вашей семьи, где каждый сможет наслаждаться комфортом, функциональностью и эстетикой современного дизайна.

Архитектурный стиль:

Архитектурный стиль дома "Modern 350" – это современный минимализм с элементами хай-тека, характеризующийся лаконичными формами, большими окнами и использованием натуральных материалов:

Плоская крыша: Плоская крыша является характерным элементом современной архитектуры, обеспечивая стильный и минималистичный внешний вид .

Большие окна: Панорамные окна и большие оконные проемы обеспечивают максимальное естественное освещение внутренних помещений и открывают прекрасный вид на окружающий ландшафт .

Отделка фасада: В отделке фасада использованы натуральные материалы, такие как камень, дерево и стекло, что создает гармоничное сочетание с окружающей природой .

Прямые линии и простые формы: Дом имеет четкие прямые линии и простые геометрические формы, что подчеркивает его современный стиль и минимализм .

Открытая планировка: Открытая планировка внутренних помещений создает ощущение простора и свободы, обеспечивая комфортное проживание для всей семьи .

Преимущества проекта "Modern 350":

Просторная планировка для большой семьи: Дом "Modern 350" предлагает просторную и функциональную планировку, включающую пять спален, просторную гостиную, кухню-столовую, несколько санузлов и другие необходимые помещения. Это обеспечивает комфортное проживание для большой семьи с детьми .

Энергоэффективные материалы: При строительстве дома используются энергоэффективные материалы, такие как газобетон, керамические блоки и кирпич, что позволяет снизить затраты на отопление и кондиционирование .

Надежность и долговечность: Дом строится с соблюдением всех строительных норм и правил, что гарантирует его надежность и долговечность. Мы используем только качественные материалы и проверенные технологии строительства 

Экологически чистые материалы: Мы заботимся о вашем здоровье и используем только экологически чистые материалы, безопасные для человека и окружающей среды .

Современные инженерные системы: Дом оснащен современными инженерными системами, обеспечивающими комфортное и безопасное проживание в любое время года .

Гараж: Встроенный гараж обеспечивает удобное хранение автомобиля и защищает его от непогоды .

Возможность индивидуализации: Мы предлагаем возможность индивидуализации планировки и отделки дома, чтобы создать пространство, идеально соответствующее вашим потребностям и предпочтениям .

Дополнительные преимущества:

Камин: В гостиной можно установить камин, который станет центром притяжения для всей семьи и создаст атмосферу тепла и уюта .

Терраса: Наличие террасы позволит вам наслаждаться свежим воздухом и проводить время на открытом воздухе в комфортной обстановке.

Панорамное остекление: Панорамное остекление обеспечивает прекрасный вид на окружающий ландшафт и создает ощущение единения с природой.

Ландшафтный дизайн: Прилегающая территория может быть оформлена с использованием элементов ландшафтного дизайна, что придаст дому дополнительную привлекательность и создаст комфортную среду для отдыха на свежем воздухе.

Удобное расположение: Дом расположен в экологически чистом районе с развитой инфраструктурой, что обеспечивает комфортное проживание и удобный доступ ко всем необходимым объектам.

Безопасность: Мы предлагаем различные варианты обеспечения безопасности дома, такие как установка сигнализации, видеонаблюдения и системы контроля доступа.

Индивидуальный подход: Мы предлагаем индивидуальный подход к каждому клиенту, учитывая все ваши пожелания и требования при проектировании и строительстве дома.

"Modern 350" – это не просто дом, это ваш современный оазис, где вы будете чувствовать себя комфортно и свободно, где будут расти ваши дети и внуки, где будет царить гармония и взаимопонимание!

Свяжитесь с нами сегодня, чтобы узнать больше о проекте "Modern 350" и сделать первый шаг к дому своей мечты! Мы поможем вам выбрать оптимальный вариант планировки, отделки и комплектации дома, а также предложим выгодные условия финансирования.

Обзоры построенных проектов
Отзывы наших клиентов
Уже есть проект, эскиз или картинка?
Мы оперативно изготовим проект, рассчитаем и приступим к строительству в течение 1 недели!
Прикрепите файл к Вашему сообщению и мы сразу рассчитаем стоимость
Рассчитать
стоимость
Экскурсия
по объектам
Избранное 0 Видео-консультация