Строительство коттеджей из газобетона и керамических блоков под ключ

Modern 230

Общая плошадь 230 м2
Количество этажей 2
Количество спален 4, 5
Стоимость дома 6 210 000 руб.
Материал
Выбрать комплектацию
Получить расчёт
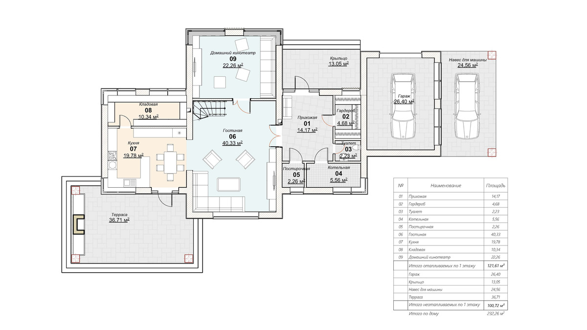
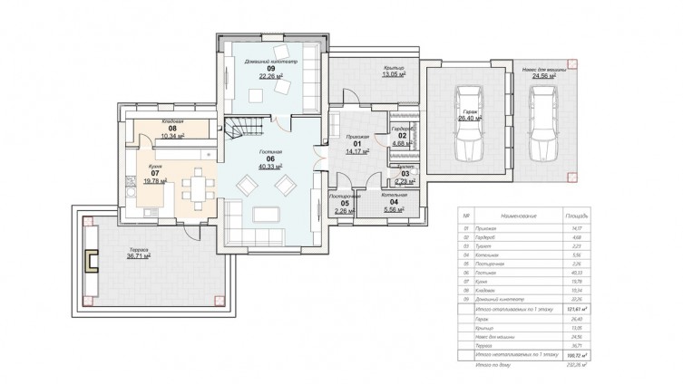
Планировка
1 этаж
2 этаж
Материал
Комплектация
Описание работы Стандарт
от  6 210 000  руб
Теплый контур
от  7 762 500  руб
"White box"
от  10 867 500  руб
Под ключ
от  12 420 000  руб
Подготовительные работы
Индивидуальное проектирование дома
Выезд инженера на объект для оценки состояния участка и грунтов
Геологические изыскания
Фундамент
Работы нулевого цикла, отсяпка основания из песка и щебня
Монолитная ж/б плита (мин. 30 см.)
Стены
Внешние несущие стены/Устройство оконных и дверных перемычек/Устройство армопоясов
Перегородки
Возведение внутренних перегородок
Вентканалы и дымоходы
Устройство под монтаж дымоходов и вытяжек
Устройство шахты дымохода и вентканалов
Перекрытия
Перекрытие из ж/б пустотных плит/монолитное перекрытие (для двухэтажных домов с полноразмерным вторым этажом)
Стропильная система
Монтаж стропильной системы
Утепление кровли
Утепление кровли (Rockwool 200мм.)
Кровельное покрытие
Кровельное покрытие из металлочерепицы
Фасад
Внешняя отделка фасада (штукатурка с утеплителем)
Водосточная система
Устройство водосточной системы
Подшив свесов кровли
Обшивка свесов кровли
Отмостка
Устройство бетонной отмостки
Отделка цоколя
Отделка цоколя камнем/штукатуркой
Окна
Окна и балконные двери пластиковые (Двухкамерные Rehau, Melke)
Наружная входная дверь
Наружная металлическая дверь (утеплённая)
Внутренние инженерные коммуникации
Монтаж системы отопления/Водоснабжения/Водоотведения/Электрика/Монтаж щитка
Внутренняя отделка
Штукатурка внутренних стен
Стяжка пола
Финишная отделка внутренних стен, пола, потолков, установка межкомнатных дверей (Базовые решения от Lemana RPO)
Описание

Представляем вашему вниманию проект дома "Modern 230" – современный двухэтажный дом, созданный для комфортной и стильной жизни вашей семьи. Этот дом общей площадью 230 м² сочетает в себе элегантный дизайн, функциональность и использование современных строительных материалов. "Modern 230" предлагает гибкость планировки с возможностью выбора между 4 и 5 спальнями. 

Архитектурный стиль

Архитектурный стиль дома "Modern 230" можно охарактеризовать как современный минимализм с элементами хай-тека. Основные черты этого стиля:

Геометричность и лаконичность: Четкие линии, прямые углы и отсутствие излишних декоративных элементов создают строгий и элегантный внешний вид .

Функциональность: Продуманная планировка, где каждый квадратный метр используется максимально эффективно для обеспечения комфортного проживания .

Большие окна: Обеспечивают хорошее естественное освещение и визуальную связь с окружающей средой .

Использование современных материалов: Сочетание различных текстур и материалов, таких как дерево, стекло, металл и бетон, для создания интересного и современного внешнего вида .

Плоская крыша: Подчеркивает современный стиль дома и обеспечивает возможность использования пространства крыши для создания террасы или зоны отдыха .

Сдержанная цветовая палитра: Использование нейтральных цветов с акцентами, подчеркивающими архитектурные детали .

Интеграция с природой: Большие окна и открытые террасы позволяют максимально интегрировать внутреннее пространство дома с окружающей природой .

Преимущества проекта "Modern 230"

Гибкая планировка: Возможность выбора между 4 и 5 спальнями позволяет адаптировать проект под нужды вашей семьи .

Встроенный гараж: Наличие встроенного гаража обеспечивает удобство и безопасность для вашего автомобиля, а также дополнительное пространство для хранения .

Материалы на выбор: При строительстве можно использовать газобетон, керамические блоки или кирпич, в зависимости от ваших предпочтений и бюджета . Каждый из этих материалов обладает своими преимуществами в плане теплоизоляции, долговечности и стоимости.

Энергоэффективность: Современные строительные материалы и технологии обеспечивают высокую энергоэффективность дома, что позволяет снизить затраты на отопление и кондиционирование .

Функциональность: Продуманная планировка обеспечивает комфортное проживание для всех членов семьи. Просторные комнаты, удобные санузлы и кухня создают идеальные условия для повседневной жизни .

Эстетика: Современный дизайн дома гармонично вписывается в любой ландшафт и подчеркивает ваш вкус и статус .

Индивидуализация: Возможность выбора материалов и отделки позволяет адаптировать проект под ваши индивидуальные потребности и предпочтения .

Двухэтажная конструкция: Оптимальное использование пространства участка, позволяющее разместить все необходимые помещения на относительно небольшой площади .

Открытые террасы: Создают дополнительные зоны отдыха на свежем воздухе, где можно наслаждаться природой и проводить время с семьей и друзьями .

Описание материалов

Газобетон: Легкий и прочный материал с отличными теплоизоляционными свойствами. Идеален для строительства теплых и энергоэффективных домов .

Керамические блоки: Экологически чистый и долговечный материал с хорошей тепло- и звукоизоляцией .

Кирпич: Традиционный и проверенный временем материал, обеспечивающий прочность и надежность конструкции .

"Modern 230" – это отличный выбор для тех, кто ценит комфорт, стиль и современные технологии. Этот дом станет уютным и надежным жилищем для вашей семьи на долгие годы .

Обзоры построенных проектов
Отзывы наших клиентов
Уже есть проект, эскиз или картинка?
Мы оперативно изготовим проект, рассчитаем и приступим к строительству в течение 1 недели!
Прикрепите файл к Вашему сообщению и мы сразу рассчитаем стоимость
Рассчитать
стоимость
Экскурсия
по объектам
Избранное 0 Видео-консультация