Строительство коттеджей из газобетона и керамических блоков под ключ

Hightech 295

Общая плошадь 295 м2
Количество этажей 2
Количество спален 4, 5
Стоимость дома 8 850 000 руб.
Материал
Выбрать комплектацию
Получить расчёт
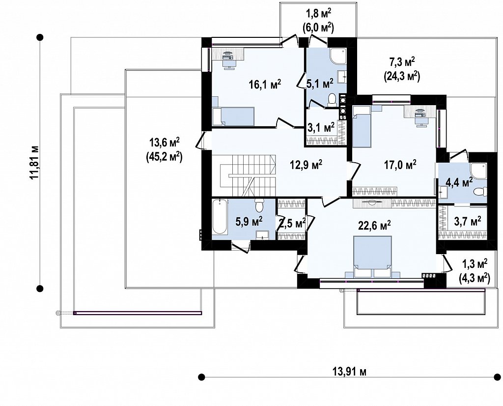
Планировка
1 этаж
2 этаж
Материал
Комплектация
Описание работы Стандарт
от  8 850 000  руб
Теплый контур
от  11 062 500  руб
"White box"
от  15 487 500  руб
Под ключ
от  17 700 000  руб
Подготовительные работы
Индивидуальное проектирование дома
Выезд инженера на объект для оценки состояния участка и грунтов
Геологические изыскания
Фундамент
Работы нулевого цикла, отсяпка основания из песка и щебня
Монолитная ж/б плита (мин. 30 см.)
Стены
Внешние несущие стены/Устройство оконных и дверных перемычек/Устройство армопоясов
Перегородки
Возведение внутренних перегородок
Вентканалы и дымоходы
Устройство под монтаж дымоходов и вытяжек
Устройство шахты дымохода и вентканалов
Перекрытия
Перекрытие из ж/б пустотных плит/монолитное перекрытие (для двухэтажных домов с полноразмерным вторым этажом)
Стропильная система
Монтаж стропильной системы
Утепление кровли
Утепление кровли (Rockwool 200мм.)
Кровельное покрытие
Кровельное покрытие из металлочерепицы
Фасад
Внешняя отделка фасада (штукатурка с утеплителем)
Водосточная система
Устройство водосточной системы
Подшив свесов кровли
Обшивка свесов кровли
Отмостка
Устройство бетонной отмостки
Отделка цоколя
Отделка цоколя камнем/штукатуркой
Окна
Окна и балконные двери пластиковые (Двухкамерные Rehau, Melke)
Наружная входная дверь
Наружная металлическая дверь (утеплённая)
Внутренние инженерные коммуникации
Монтаж системы отопления/Водоснабжения/Водоотведения/Электрика/Монтаж щитка
Внутренняя отделка
Штукатурка внутренних стен
Стяжка пола
Финишная отделка внутренних стен, пола, потолков, установка межкомнатных дверей (Базовые решения от Lemana RPO)
Описание

Дом "Hightech 295" – это воплощение современного стиля и передовых технологий.  Этот двухэтажный дом площадью 295 м² предлагает 4 или 5 спален, что делает его отличным выбором для семей, ценящих комфорт и функциональность .

Архитектурный стиль:

Дом "Hightech 295" выполнен в стиле хай-тек, который характеризуется использованием современных материалов и технологий . Основные черты этого стиля – прямые линии, плоская крыша, большие окна и минималистичный дизайн . В отделке фасада используются современные материалы, такие как стекло, металл и бетон, что придает дому стильный и современный вид .

Преимущества проекта:

Современный дизайн: Дом "Hightech 295" имеет современный и стильный дизайн, который подчеркивает индивидуальность владельца . Минималистичные формы и использование современных материалов создают ощущение легкости и простора .

Функциональность: В доме предусмотрены все необходимые помещения для комфортной жизни семьи . Просторные спальни, гостиная, кухня-столовая, кабинет и несколько ванных комнат обеспечивают удобство и функциональность .

Энергоэффективность: Дом построен с использованием современных технологий и материалов, что обеспечивает высокую энергоэффективность и снижает затраты на отопление и кондиционирование воздуха .

Технологичность: В доме предусмотрены современные инженерные системы, такие как "умный дом", которые обеспечивают комфорт и безопасность .

Индивидуальный подход: Мы предлагаем возможность внесения изменений в проект дома "Hightech 295" в соответствии с вашими индивидуальными потребностями и предпочтениями . Вы можете выбрать отделочные материалы, планировку комнат и другие параметры, чтобы создать дом своей мечты.

Стоимость и комплектация:

В стоимость дома "Hightech 295"  входит:

Фундамент

Стены и перекрытия

Кровля

Окна и двери

Внешняя отделка

Дополнительно можно заказать внутреннюю отделку, установку сантехники и другие работы.

Дом "Hightech 295" – это отличный выбор для тех, кто ценит современный стиль, функциональность и передовые технологии. Свяжитесь с нами сегодня, чтобы узнать больше об этом проекте и начать строительство дома своей мечты!

Обзоры построенных проектов
Отзывы наших клиентов
Уже есть проект, эскиз или картинка?
Мы оперативно изготовим проект, рассчитаем и приступим к строительству в течение 1 недели!
Прикрепите файл к Вашему сообщению и мы сразу рассчитаем стоимость
Рассчитать
стоимость
Экскурсия
по объектам
Избранное 0 Видео-консультация