Строительство коттеджей из газобетона и керамических блоков под ключ

Modern 274

Общая плошадь 274 м2
Количество этажей 2
Количество спален 5
Стоимость дома 7 398 000 руб.
Материал
Выбрать комплектацию
Получить расчёт
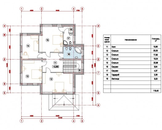
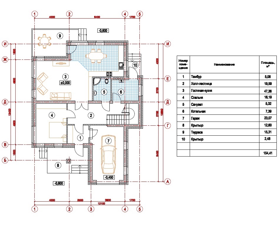
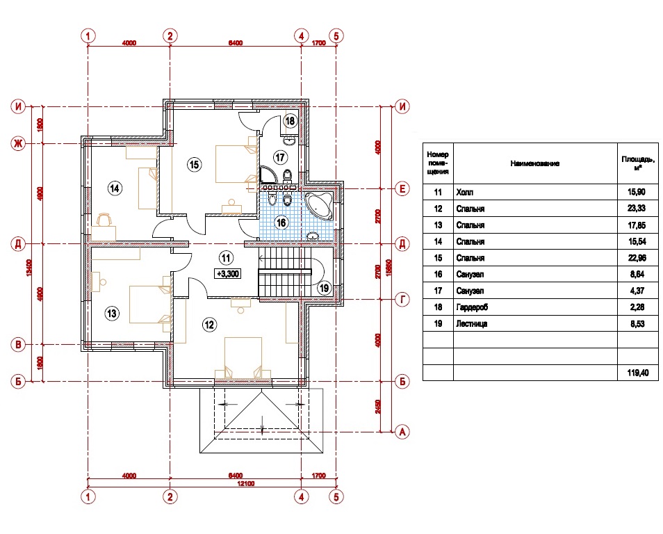
Планировка
1 этаж
2 этаж
Материал
Комплектация
Описание работы Стандарт
от  7 398 000  руб
Теплый контур
от  9 247 500  руб
"White box"
от  12 946 500  руб
Под ключ
от  14 796 000  руб
Подготовительные работы
Индивидуальное проектирование дома
Выезд инженера на объект для оценки состояния участка и грунтов
Геологические изыскания
Фундамент
Работы нулевого цикла, отсяпка основания из песка и щебня
Монолитная ж/б плита (мин. 30 см.)
Стены
Внешние несущие стены/Устройство оконных и дверных перемычек/Устройство армопоясов
Перегородки
Возведение внутренних перегородок
Вентканалы и дымоходы
Устройство под монтаж дымоходов и вытяжек
Устройство шахты дымохода и вентканалов
Перекрытия
Перекрытие из ж/б пустотных плит/монолитное перекрытие (для двухэтажных домов с полноразмерным вторым этажом)
Стропильная система
Монтаж стропильной системы
Утепление кровли
Утепление кровли (Rockwool 200мм.)
Кровельное покрытие
Кровельное покрытие из металлочерепицы
Фасад
Внешняя отделка фасада (штукатурка с утеплителем)
Водосточная система
Устройство водосточной системы
Подшив свесов кровли
Обшивка свесов кровли
Отмостка
Устройство бетонной отмостки
Отделка цоколя
Отделка цоколя камнем/штукатуркой
Окна
Окна и балконные двери пластиковые (Двухкамерные Rehau, Melke)
Наружная входная дверь
Наружная металлическая дверь (утеплённая)
Внутренние инженерные коммуникации
Монтаж системы отопления/Водоснабжения/Водоотведения/Электрика/Монтаж щитка
Внутренняя отделка
Штукатурка внутренних стен
Стяжка пола
Финишная отделка внутренних стен, пола, потолков, установка межкомнатных дверей (Базовые решения от Lemana RPO)
Описание

Представляем вашему вниманию проект дома "Modern 274" – двухэтажный дом площадью 274 м², который сочетает в себе современный дизайн и практичность. Этот дом предлагает 5 просторных спален, что делает его идеальным выбором для большой семьи. "Modern 274" создан с использованием современных строительных технологий и высококачественных материалов, что гарантирует его долговечность и энергоэффективность. 

Архитектурный стиль

Архитектурный стиль дома "Modern 274" представляет собой современную интерпретацию классического стиля с элементами минимализма. Основные черты этого стиля:

Четкие линии и геометрические формы: Фасад дома отличается четкими линиями и простыми геометрическими формами, что придает ему современный и лаконичный вид .

Использование натуральных материалов: В отделке фасада используются кирпич разных оттенков, что придает дому теплоту и естественность .

Большие окна: Обеспечивают хорошее естественное освещение и визуальную связь с окружающей средой .

Двускатная крыша: Подчеркивает классический стиль дома и обеспечивает надежную защиту от непогоды .

Пристроенный гараж: Обеспечивает удобный доступ к автомобилю и дополнительное пространство для хранения .

Минимализм в деталях: Отсутствие излишних декоративных элементов подчеркивает функциональность и современность дизайна .

Преимущества проекта "Modern 274"

Просторная планировка: 5 спален обеспечивают комфортное размещение для большой семьи или тех, кто любит принимать гостей .

Пристроенный гараж: Обеспечивает удобный доступ к автомобилю и дополнительное пространство для хранения .

Материалы на выбор: При строительстве можно использовать газобетон, керамические блоки или кирпич, в зависимости от ваших предпочтений и бюджета . Каждый из этих материалов обладает своими преимуществами в плане теплоизоляции, долговечности и стоимости.

Энергоэффективность: Современные строительные материалы и технологии обеспечивают высокую энергоэффективность дома, что позволяет снизить затраты на отопление и кондиционирование .

Функциональность: Продуманная планировка обеспечивает комфортное проживание для всех членов семьи. Просторные комнаты, удобные санузлы и кухня создают идеальные условия для повседневной жизни .

Эстетика: Современный и стильный дизайн дома гармонично вписывается в любой ландшафт и подчеркивает ваш вкус и статус .

Индивидуализация: Возможность выбора материалов и отделки позволяет адаптировать проект под ваши индивидуальные потребности и предпочтения .

Двухэтажная конструкция: Оптимальное использование пространства участка, позволяющее разместить все необходимые помещения на относительно небольшой площади .

Описание материалов

Газобетон: Легкий и прочный материал с отличными теплоизоляционными свойствами. Идеален для строительства теплых и энергоэффективных домов .

Керамические блоки: Экологически чистый и долговечный материал с хорошей тепло- и звукоизоляцией .

Кирпич: Традиционный и проверенный временем материал, обеспечивающий прочность и надежность конструкции .

"Modern 274" – это отличный выбор для тех, кто ценит комфорт, стиль и функциональность. Этот дом станет уютным и надежным жилищем для вашей семьи на долгие годы .

Обзоры построенных проектов
Отзывы наших клиентов
Уже есть проект, эскиз или картинка?
Мы оперативно изготовим проект, рассчитаем и приступим к строительству в течение 1 недели!
Прикрепите файл к Вашему сообщению и мы сразу рассчитаем стоимость
Рассчитать
стоимость
Экскурсия
по объектам
Избранное 0 Видео-консультация