Строительство коттеджей из газобетона и керамических блоков под ключ

Modern 261

Общая плошадь 261 м2
Количество этажей 2
Количество спален 4
Стоимость дома 7 047 000 руб.
Материал
Выбрать комплектацию
Получить расчёт
Планировка
1 этаж
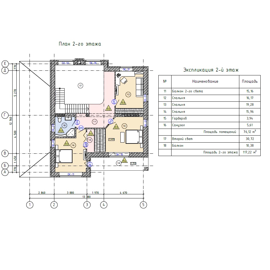
2 этаж
Материал
Комплектация
Описание работы Стандарт
от  7 047 000  руб
Теплый контур
от  8 808 750  руб
"White box"
от  12 332 250  руб
Под ключ
от  14 094 000  руб
Подготовительные работы
Индивидуальное проектирование дома
Выезд инженера на объект для оценки состояния участка и грунтов
Геологические изыскания
Фундамент
Работы нулевого цикла, отсяпка основания из песка и щебня
Монолитная ж/б плита (мин. 30 см.)
Стены
Внешние несущие стены/Устройство оконных и дверных перемычек/Устройство армопоясов
Перегородки
Возведение внутренних перегородок
Вентканалы и дымоходы
Устройство под монтаж дымоходов и вытяжек
Устройство шахты дымохода и вентканалов
Перекрытия
Перекрытие из ж/б пустотных плит/монолитное перекрытие (для двухэтажных домов с полноразмерным вторым этажом)
Стропильная система
Монтаж стропильной системы
Утепление кровли
Утепление кровли (Rockwool 200мм.)
Кровельное покрытие
Кровельное покрытие из металлочерепицы
Фасад
Внешняя отделка фасада (штукатурка с утеплителем)
Водосточная система
Устройство водосточной системы
Подшив свесов кровли
Обшивка свесов кровли
Отмостка
Устройство бетонной отмостки
Отделка цоколя
Отделка цоколя камнем/штукатуркой
Окна
Окна и балконные двери пластиковые (Двухкамерные Rehau, Melke)
Наружная входная дверь
Наружная металлическая дверь (утеплённая)
Внутренние инженерные коммуникации
Монтаж системы отопления/Водоснабжения/Водоотведения/Электрика/Монтаж щитка
Внутренняя отделка
Штукатурка внутренних стен
Стяжка пола
Финишная отделка внутренних стен, пола, потолков, установка межкомнатных дверей (Базовые решения от Lemana RPO)
Описание

Представляем вашему вниманию проект дома "Modern 261" – двухэтажный дом площадью 261 м², сочетающий в себе современные тенденции и уют классического стиля. Этот дом идеально подойдет для семьи с детьми, предлагая 4 просторные спальни и все необходимое для комфортной жизни. 

Архитектурный стиль

Архитектурный стиль дома "Modern 261" – это современная классика, которая характеризуется элегантностью, функциональностью и использованием качественных материалов.

Симметрия и пропорциональность: Симметричное расположение окон, дверей и других элементов фасада создает гармоничный и приятный для глаз образ .

Четкие линии и геометрические формы: Четкие линии и простые геометрические формы придают дому современный и лаконичный вид .

Использование традиционных материалов: В отделке фасада используются кирпич и штукатурка, что придает дому респектабельный и надежный вид .

Большие окна: Обеспечивают хорошее естественное освещение и визуальную связь с окружающей природой .

Двускатная крыша: Подчеркивает классический стиль дома и обеспечивает надежную защиту от атмосферных осадков .

Балкон: Придает дому дополнительный шарм и позволяет наслаждаться свежим воздухом, не выходя из дома .

Терраса: Создает уютное пространство для отдыха на открытом воздухе .

Преимущества проекта "Modern 261"

Просторная планировка: 4 спальни обеспечивают достаточно места для каждого члена семьи .

Балкон и терраса: Возможность наслаждаться свежим воздухом и красивыми видами .

Материалы на выбор: Строительство из газобетона, керамических блоков или кирпича позволяет выбрать оптимальное сочетание цены и качества .

Энергоэффективность: Современные материалы и технологии обеспечивают низкие эксплуатационные расходы .

Функциональность: Продуманная планировка и удобное расположение комнат .

Эстетика: Привлекательный внешний вид и гармоничное сочетание с окружающей средой .

Индивидуализация: Возможность выбора отделочных материалов и цветовых решений .

Двухэтажная конструкция: Оптимальное использование площади участка .

Описание материалов

Газобетон: Легкий, прочный и теплый материал для строительства энергоэффективного дома .

Керамические блоки: Экологичный материал с отличной тепло- и звукоизоляцией .

Кирпич: Традиционный материал, проверенный временем, обеспечивает прочность и долговечность .

"Modern 261" – это идеальный выбор для тех, кто ищет комфортный, стильный и надежный дом для своей семьи .

Обзоры построенных проектов
Отзывы наших клиентов
Уже есть проект, эскиз или картинка?
Мы оперативно изготовим проект, рассчитаем и приступим к строительству в течение 1 недели!
Прикрепите файл к Вашему сообщению и мы сразу рассчитаем стоимость
Рассчитать
стоимость
Экскурсия
по объектам
Избранное 0 Видео-консультация