Строительство коттеджей из газобетона и керамических блоков под ключ

Country 557

Общая плошадь 557 м2
Количество этажей 2
Количество спален 7
Стоимость дома 15 039 000 руб.
Материал
Выбрать комплектацию
Получить расчёт
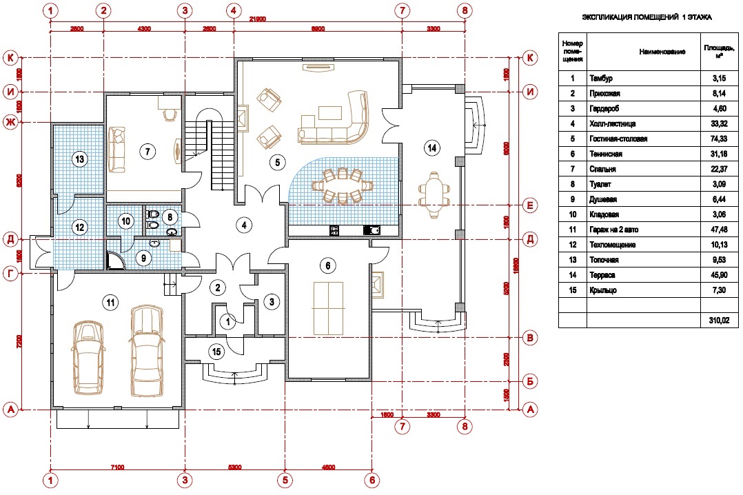
Планировка
1 этаж
2 этаж
Материал
Комплектация
Описание работы Стандарт
от  15 039 000  руб
Теплый контур
от  18 798 750  руб
"White box"
от  26 318 250  руб
Под ключ
от  30 078 000  руб
Подготовительные работы
Индивидуальное проектирование дома
Выезд инженера на объект для оценки состояния участка и грунтов
Геологические изыскания
Фундамент
Работы нулевого цикла, отсяпка основания из песка и щебня
Монолитная ж/б плита (мин. 30 см.)
Стены
Внешние несущие стены/Устройство оконных и дверных перемычек/Устройство армопоясов
Перегородки
Возведение внутренних перегородок
Вентканалы и дымоходы
Устройство под монтаж дымоходов и вытяжек
Устройство шахты дымохода и вентканалов
Перекрытия
Перекрытие из ж/б пустотных плит/монолитное перекрытие (для двухэтажных домов с полноразмерным вторым этажом)
Стропильная система
Монтаж стропильной системы
Утепление кровли
Утепление кровли (Rockwool 200мм.)
Кровельное покрытие
Кровельное покрытие из металлочерепицы
Фасад
Внешняя отделка фасада (штукатурка с утеплителем)
Водосточная система
Устройство водосточной системы
Подшив свесов кровли
Обшивка свесов кровли
Отмостка
Устройство бетонной отмостки
Отделка цоколя
Отделка цоколя камнем/штукатуркой
Окна
Окна и балконные двери пластиковые (Двухкамерные Rehau, Melke)
Наружная входная дверь
Наружная металлическая дверь (утеплённая)
Внутренние инженерные коммуникации
Монтаж системы отопления/Водоснабжения/Водоотведения/Электрика/Монтаж щитка
Внутренняя отделка
Штукатурка внутренних стен
Стяжка пола
Финишная отделка внутренних стен, пола, потолков, установка межкомнатных дверей (Базовые решения от Lemana RPO)
Описание

Представляем вам дом «Country 557» — роскошный двухэтажный дом, сочетающий в себе элегантный дизайн, простор и функциональность. Общая площадь дома составляет 557 м², в нем 7 спален и все современные удобства, необходимые для комфортной жизни большой семьи.

Архитектурный стиль:

Дом «Country 557» выполнен в традиционном американском стиле с элементами неоклассики . Для этого стиля характерны симметричные фасады, центральный вход и большие окна . Использование кирпича или дерева, двускатные крыши, декоративные элементы на фасаде .

Преимущества проекта:

Просторная планировка: Дом «Country 557» отличается просторными планировками, создающими ощущение простора и свободы . Открытые пространства, соединяющие кухню, столовую и гостиную .

Функциональность: В таких домах уделяется большое внимание удобству и практичности . Встроенные гардеробные, большие кухни и функциональные подвальные помещения .

Энергоэффективность: Современные материалы и технологии строительства обеспечивают высокую энергоэффективность домов, снижая затраты на отопление и кондиционирование .

Встроенные удобства: В большинстве американских домов предусмотрены встроенные гардеробные, прачечные и подвалы, что добавляет удобства в повседневной жизни .

Индивидуальный подход: Мы предлагаем возможность внесения изменений в проект дома «Country 557» в соответствии с вашими индивидуальными потребностями и предпочтениями . Вы можете выбрать отделочные материалы, планировку комнат и другие параметры, чтобы создать дом своей мечты.

Обзоры построенных проектов
Отзывы наших клиентов
Уже есть проект, эскиз или картинка?
Мы оперативно изготовим проект, рассчитаем и приступим к строительству в течение 1 недели!
Прикрепите файл к Вашему сообщению и мы сразу рассчитаем стоимость
Рассчитать
стоимость
Экскурсия
по объектам
Избранное 0 Видео-консультация