Строительство коттеджей из газобетона и керамических блоков под ключ

Country 175

Общая плошадь 175 м2
Количество этажей 2
Количество спален 3
Стоимость дома 4 725 000 руб.
Материал
Выбрать комплектацию
Получить расчёт
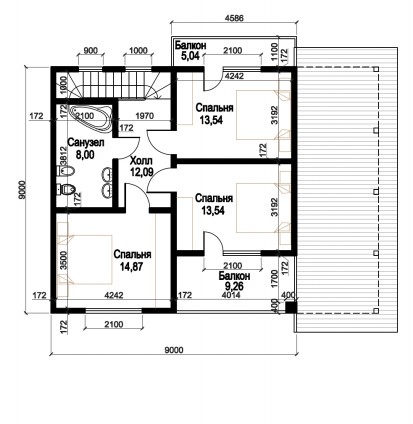
Планировка
1 этаж
2 этаж
Материал
Комплектация
Описание работы Стандарт
от  4 725 000  руб
Теплый контур
от  5 906 250  руб
"White box"
от  8 268 750  руб
Под ключ
от  9 450 000  руб
Подготовительные работы
Индивидуальное проектирование дома
Выезд инженера на объект для оценки состояния участка и грунтов
Геологические изыскания
Фундамент
Работы нулевого цикла, отсяпка основания из песка и щебня
Монолитная ж/б плита (мин. 30 см.)
Стены
Внешние несущие стены/Устройство оконных и дверных перемычек/Устройство армопоясов
Перегородки
Возведение внутренних перегородок
Вентканалы и дымоходы
Устройство под монтаж дымоходов и вытяжек
Устройство шахты дымохода и вентканалов
Перекрытия
Перекрытие из ж/б пустотных плит/монолитное перекрытие (для двухэтажных домов с полноразмерным вторым этажом)
Стропильная система
Монтаж стропильной системы
Утепление кровли
Утепление кровли (Rockwool 200мм.)
Кровельное покрытие
Кровельное покрытие из металлочерепицы
Фасад
Внешняя отделка фасада (штукатурка с утеплителем)
Водосточная система
Устройство водосточной системы
Подшив свесов кровли
Обшивка свесов кровли
Отмостка
Устройство бетонной отмостки
Отделка цоколя
Отделка цоколя камнем/штукатуркой
Окна
Окна и балконные двери пластиковые (Двухкамерные Rehau, Melke)
Наружная входная дверь
Наружная металлическая дверь (утеплённая)
Внутренние инженерные коммуникации
Монтаж системы отопления/Водоснабжения/Водоотведения/Электрика/Монтаж щитка
Внутренняя отделка
Штукатурка внутренних стен
Стяжка пола
Финишная отделка внутренних стен, пола, потолков, установка межкомнатных дверей (Базовые решения от Lemana RPO)
Описание

Представляем вашему вниманию проект "Country 175" – двухэтажный дом площадью 175 м², спроектированный для тех, кто ценит комфорт, простор и гармонию с природой. Этот дом сочетает в себе элементы классического загородного стиля с современными архитектурными решениями, создавая неповторимую атмосферу уюта и благополучия для вашей семьи.

Архитектурный стиль:

Архитектурный стиль дома "Country 175" – это гармоничное сочетание традиционного загородного стиля и современной функциональности:

Двускатная крыша: Классическая двускатная крыша не только эффективно защищает дом от атмосферных осадков, но и придает ему традиционный и уютный вид .

Отделка фасада натуральными материалами: Комбинированная отделка фасада с использованием камня и дерева создает ощущение близости к природе и придает дому индивидуальность и шарм .

Просторная терраса: Просторная терраса, опоясывающая часть дома, является идеальным местом для отдыха на свежем воздухе и проведения времени с семьей и друзьями .

Большие окна: Большие окна обеспечивают хорошее естественное освещение внутренних помещений и открывают живописные виды на окружающий ландшафт .

Балкон: Наличие балкона на втором этаже добавляет дому изысканности и предоставляет дополнительное пространство для отдыха на свежем воздухе .

Преимущества проекта "Country 175":

Просторная планировка для комфортной жизни: Дом "Country 175" предлагает просторную планировку с тремя спальнями, просторной гостиной, кухней-столовой и двумя санузлами, что обеспечивает комфортное проживание для семьи из 4-5 человек .

Энергоэффективные материалы: При строительстве дома используются энергоэффективные материалы, такие как газобетон, керамические блоки и кирпич, что позволяет снизить затраты на отопление и кондиционирование .

Надежность и долговечность: Мы используем только качественные материалы и современные технологии строительства, что гарантирует надежность и долговечность вашего дома .

Экологически чистые материалы: Мы заботимся о вашем здоровье и используем только экологически чистые материалы, безопасные для человека и окружающей среды .

Современные инженерные системы: Дом оснащен всеми необходимыми современными инженерными системами, обеспечивающими комфортное и безопасное проживание в любое время года .

Возможность индивидуализации: Мы предлагаем возможность индивидуализации планировки и отделки дома, чтобы создать пространство, идеально соответствующее вашим потребностям и предпочтениям .

Просторная терраса для отдыха на свежем воздухе: Просторная терраса станет любимым местом для отдыха всей семьи и проведения времени с друзьями .

Дополнительные преимущества:

Уютный интерьер: Продуманный дизайн интерьера создает атмосферу тепла и уюта в доме, способствуя расслаблению и отдыху.

Зеленый участок: Дом окружен живописным зеленым участком, который станет прекрасным местом для игр детей и отдыха взрослых.

Развитая инфраструктура: Дом расположен в районе с развитой инфраструктурой, что обеспечивает удобный доступ ко всем необходимым объектам: магазинам, школам, детским садам и т.д.

Безопасность: Мы предлагаем различные варианты обеспечения безопасности дома, такие как установка сигнализации, видеонаблюдения и системы контроля доступа.

Индивидуальный подход: Мы предлагаем индивидуальный подход к каждому клиенту, учитывая все ваши пожелания и требования при проектировании и строительстве дома.

"Country 175" – это не просто дом, это место, где рождается счастье, крепнут семейные узы и создаются незабываемые воспоминания!

Свяжитесь с нами сегодня, чтобы узнать больше о проекте "Country 175" и сделать первый шаг к дому своей мечты! Мы поможем вам выбрать оптимальный вариант планировки, отделки и комплектации дома, а также предложим выгодные условия финансирования .

Обзоры построенных проектов
Отзывы наших клиентов
Уже есть проект, эскиз или картинка?
Мы оперативно изготовим проект, рассчитаем и приступим к строительству в течение 1 недели!
Прикрепите файл к Вашему сообщению и мы сразу рассчитаем стоимость
Рассчитать
стоимость
Экскурсия
по объектам
Избранное 0 Видео-консультация